News   Feb 05, 2024
 1.8K     0 
News   Jan 27, 2020
 2.1K     0 
News   Nov 14, 2019
 2.2K     0 

267 O'Connor St | 97.65+88m | 25+28s | Taggart | UNStudio + Hobin

urbottawa

Active Member
Member Bio
Joined
Dec 12, 2023
Messages
339
Reaction score
515
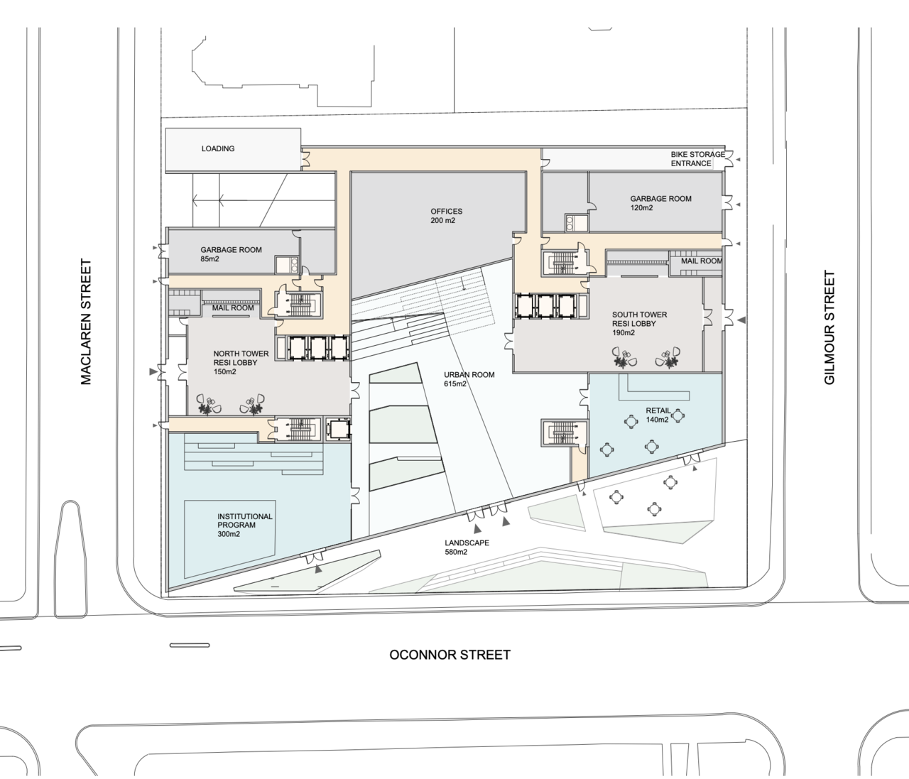
"Located in the heart of Centretown, 267 O’Connor is home to a 6-storey office building and a large surface parking lot. Extending from Gilmour Street to MacLaren Street along the East side of O’Connor Street, the location of this property offers the opportunity to anchor Centretown with a placemaking development featuring landmark architecture and a significant public open space. The following images highlight the site boundary and location.

UNStudio has been brought on to the design team to inspire a development that creates a new sense of neighbourhood in this area of Centretown, one with strong connections to the public spaces in the area and on the site. As the architectural lead, UNStudio will work with Hobin to design a landmark building that sensitively fits within the local Centretown context.

The project aims to become a social hub on the site, expanding its community presence to the surrounding neighborhood. In order to make it a destination, the site will house unique spaces where local residents can gather. This social hub will also promote healthy living through facilities that are accessible all year round."


Project website

Previous discussion

Devapp

Streetview

Siteplan:
Screenshot 2024-07-08 at 6.53.00 PM.png


Renderings:

Screenshot 2024-07-08 at 6.52.31 PM.png
Screenshot 2024-07-08 at 6.52.05 PM.png
Screenshot 2024-07-08 at 6.51.53 PM.png
Screenshot 2024-07-08 at 6.51.46 PM.png
Screenshot 2024-07-08 at 6.51.37 PM.png
Screenshot 2024-07-08 at 6.51.28 PM.png
Screenshot 2024-07-08 at 6.51.18 PM.png
 
Okay these, these are actually nice. I wish they were like 38 and 33, but honestly as is, I would love to see these go up. They're really good renders and if the real building looks anything like that, these are going to add a lot of character to the area. Elevations say 97.65m (so 98m) and 88m.
 
Last edited:
These look so much better than the 40 story charcwhite with the ginormous podium they had a placeholder on their website.

The heights are no insignificant at 97.65+88m

These stack nicely with the bus station towers for depth in the central skyline.

Screenshot 2024-07-09 001345.png
Screenshot 2024-07-09 001331.png
 
Phasing plan (no dates).

1720530594328.png

Urban Room

1720530627278.png

1720530649573.png


NCC height limits (which I didn't think applied here). Could have been taller.

1720530738105.png
 
The UDRP had a lot to say about this one (unsurprisingly) Link

It's cool to see that they brought in an international firm. UNStudio has some really interesting projects so I'm cautiously optimistic that this will be a great project even after it goes through the UDRP and city approval process.
 
So, the developer has realized, as with the site down the street at Kent, that when the city lawfully passed a written policy exchanging 27 stories for really good "landmark" architecture, they meant 27 stories and really good architecture. Now they are producing projects that follow these guidelines. Certainly a new approach. Only question is when and whether these and other landmarks like the one proposed near the museum will get off the page and off the ground.
 
Wow surprised to see the new design, thought I recognized the address. Much different than the original proposal but loving it. The materials, the amenities/ground floor, orientation, everything looks pretty new, fresh, exciting and different. Something we don't see a lot of in Ottawa. Really hope this gets approved and goes through rather quickly. Also wouldn't mind seeing them a bit thinner but taller.
 
Makes sense. It seems taller, slimmer towers could respond to some of UDRP's concerns.

Totally, that seemed implied from their comments...they said it without saying it. That's a good thing in this city! Potential progress!
I think that's a nice step in the right direction, go up to the limit for height and it can be slimmed down a bit. I hope they keep things almost identical to what is here now, I am really liking this project.
 

Back
Top